Piła, Motylewo

Dom na sprzedaż

Opis nieruchomości

DOM JEDNORODZINNY NA os Motylewo w Pile
 

Na sprzedaż nieruchomość zlokalizowana na os. Motylewo w Pile
Dom o powierzchni użytkowej ok. 139 m² usytuowany na starannie zagospodarowanej działce o powierzchni 1 380m², w otoczeniu zieleni i rzeki. To propozycja dla osób, które poszukują spokojnego miejsca do życia, z funkcjonalnym rozkładem pomieszczeń i garażem

Architektura i lokalizacja

  • Dach pokryto cementową dachówką

  • Dom na spokojnym osiedlu w zielonej części miasta – w sąsiedztwie rzeki, łąk

Układ pomieszczeń i wykończenie - jeden z wielu atutów -

POKÓJ DODATKOWY NA PARTERZE 


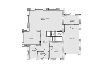
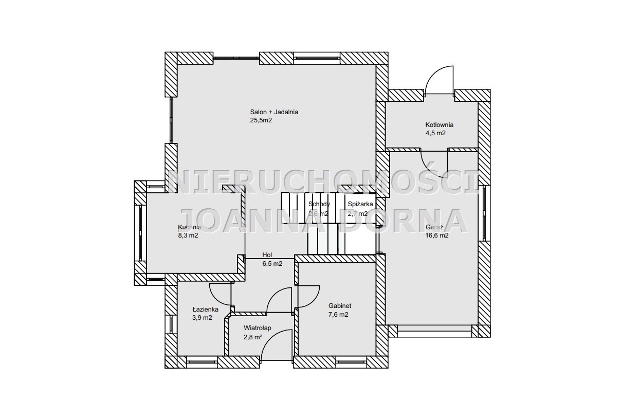
1. PARTER - ok. 81 m2

Dom wyróżnia się przemyślanym rozkładem, który umożliwia wygodne funkcjonowanie zarówno rodzinie, jak i osobom prowadzącym aktywny tryb życia.

- Salon z jadalnią (ok. 26m²). Z salonu wyjście na taras i do ogrodu. Miejsce na duży stół w jadalni oraz w salonie część wypoczynkową umożliwiającą wspólne spędzanie czasu przez domowników

- Aneks kuchenny (ok. 8) z zabudową kuchenną wykonaną na indywidualne zamówienie. Zmywarka, piekarnik. Na
 podłogach w salonie, kuchni i korytarzu jednolite panele które dodają klasy

W salonie zamontowano kominek z płaszczem wodnym, który tworzy przytulną atmosferę i stanowi element dekoracyjny oraz dodatkową funkcję grzewczą

- Pokój (ok. 8 m²) doskonale nadają się jako pokój do pracy lub pokój gościnny 

- Łazienka (ok. 4m²) z natryskiem i wc. W łazience dwa okna

- Spiżarnia (ok. 3m²) idealna do przechowywania

- Garaż (ok. 17m²) z bezpośrednim wejściem do domu zapewnia wygodę na co dzień. Brama otwierana na pilota. Podłoga w glazurze. Garaż ogrzewany oraz wyposażony w okno

- Kotłownia (ok. 4,5m²) stanowi dodatkową przestrzeń techniczną w której znajduje się m.in. piec kondensacyjny Buderus przeznaczony do ogrzewania domu. Z kotłowni bezpośrednie wyjście do ogrodu.
 

2. PÓŁPIĘTRO i I PIETRO ok. 58m2 - 4 pokoje i 2 garderoby, łazienka

- Dwa pokoje
o pow. (ok. 9 i 10). Widok z pokoi na ogród. Z pokoi wyjście na jeden wspólny balkon

- Dwa kolejne pokoje
(ok. 10) z garderobą (ok, 2) i pokój (ok. 12) z garderobą (ok. 3). Z większego pokoju wyjście na balkon

 

Technologie i infrastruktura


►ogrzewanie podłogowe
 w obu łazienkach, aneksie kuchennym i w przedsionku

►nieruchomość jest podłączona do sieci kanalizacyjnej, wodociągowej, gazowej i elektrycznej

► rolety okienne we wszystkich oknach (za wyjątkiem okien połaciowych)

Zagospodarowanie terenu

Działka o powierzchni 1380 m² została zaplanowana z dbałością o estetykę i funkcjonalność:

► Przed budynkiem znajduje się przestrzeń do wygodnego parkowania dodatkowych pojazdów

► Ogród w tylnej części działki to miejsce do wypoczynku. W tej części znajduje się również warzywniak, drzewa owocowe, trawy ozdobne, wiata na narzędzia, rowery lub przechowywanie np. mebli ogrodowych itp.

► W ogrodzie także własna studia głębinowa, nawadnianie ogrodu 

Ten dom to funkcjonalny rozkład wnętrz oraz atrakcyjna lokalizacji sprawiająca, że nieruchomość spełni oczekiwania nawet najbardziej wymagających nabywców


POLECAM I ZAPRASZAM NA PREZENTACJĘ

Nota prawna

Opis oferty zawarty na stronie internetowej sporządzany jest na podstawie oględzin nieruchomości oraz informacji uzyskanych od właściciela, może podlegać aktualizacji i nie stanowi oferty określonej w art. 66 i następnych K.C.

Szczegóły oferty

Symbol oferty NJD-DS-1803
Powierzchnia 139,00 m²
Powierzchnia działki 1 380 m²
Liczba pokoi 6
Rodzaj domu wolnostojący
Technologia budowlana ytong
Garaż w bryle
Okna PCV
Balkon jest
Liczba balkonów 2
Liczba tarasów 1
Zagosp. działki zagospodarowana
Ukształtowanie działki płaska
Kształt działki nieregularny
Pokrycie dachu dachówka cementowa
Pozwolenie na użytkowanie tak
Rok budowy 2008
Gaz tak - miejski
Woda tak - miejska
Otoczenie zabudowa jednorodzinna
Ogrzewanie C.O. GAZOWE
Tarasy taras
Prąd jest
Kanalizacja miejska

Kalkulator kredytowy

PLN
%
Wysokość raty

Kalkulator kosztów

PLN
PLN
PLN
PLN
PLN
PLN
%
PLN
Podatek od czynności cywilno-prawnych
Taksa notarialna (opłata notarialna)
VAT od taksy notarialnej (opłaty notarialnej)
Wniosek do WKW
VAT od wniosku do WKW
Prowizja agencji nieruchomości
VAT od prowizji agencji nieruchomości
Wypisy aktu notarialnego - około
RAZEM (cena + opłaty)

Uwaga: mogą wystąpić dodatkowe opłaty za założenie księgi wieczystej oraz ustanowienie hipoteki.

Podobne oferty

dom na sprzedaż - Piła, Śródmieście

dom na sprzedaż

Piła, Śródmieście
  271,77 m2 3 753,17 zł/m2
dom na sprzedaż - Piła, Staszyce

dom na sprzedaż

Piła, Staszyce
6 pokoi 225,00 m2 5 733,33 zł/m2

Napisz do nas

Proszę wypełnić to pole
Proszę wypełnić to pole
Proszę wypełnić to pole
Proszę wypełnić to pole
Trwa wysyłanie...

Ta strona wykorzystuje pliki cookies w celach statystycznych oraz w celu dostosowania naszych serwisów do indywidualnych potrzeb klientów. Zmiany ustawień dotyczących plików cookie można dokonać w dowolnej chwili modyfikując ustawienia przeglądarki. Korzystanie z tej strony bez zmian ustawień dotyczących cookies oznacza, że będą one zapisane w pamięci urządzenia.

rozumiem